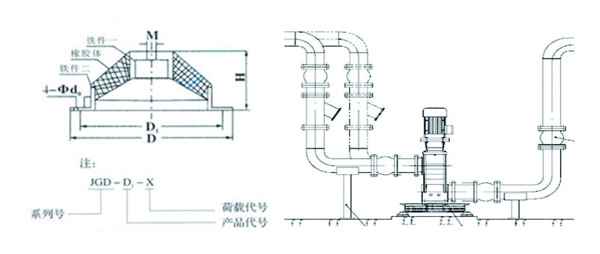
以下是JGD型水泵橡胶剪切隔振器介绍:
本文链接: http://www.60547772.com/product/61.html
【试验报告】JGD型水泵橡胶减震器压缩性能检测
【检验报告】EPDM橡胶接头含量
橡胶接头制造商【淞江集团】集团登记证书
淞江集团ISO9001-2008证书